最寄駅
JR「飯田橋」駅
徒歩・バス分数
徒歩6分
種別
マンション
賃料/管理費等
240,000円 / 0円
敷金・礼金/仲介手数料
2ヶ月・1ヶ月/-
間取り/専有面積
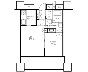
1LDK/42.16㎡
物件概要
| 物件名 | パークコート千代田富士見(区分所有) |
|---|---|
| 所在地 | 東京都千代田区富士見2-10-3 |
| 沿線・駅 | JR線「飯田橋」駅徒歩6分 東西線「飯田橋」駅 徒歩6分 有楽町線「飯田橋」駅徒歩7分 南北線「飯田橋」駅徒歩6分 大江戸線「飯田橋」駅徒歩9分 |
| 構造 | 鉄骨鉄筋コンクリート造 |
| 間取り/方位 | 1LDK/北西 |
| 築年月 | 平成26年3月 |
| 駐車場 | 有(有料、要相談) |
| 備考 | ペット相談(小型まで)505棟 |
| 設備 | ・防災性能(制震装置、非常用自家発電機・蓄電池等) ・オートロック ・防犯カメラ ・24時間有人管理(防災センター) ・フロントサービス ・レンタルサイクル ・駐輪場 ・宅配ボックス ・トランクルーム ・ラウンジ ・BS対応可、CS(110°対応) ・インターネット光ファイバー対応可 ・エレベーター ・ごみ置場 ・分譲タイプ ・ハンズフリーカラーTVモニター付きインターホン ・ディンプルキー ・ダブルロック ・エアコン ・床暖房 ・フルオートバス ・浴室サイズ1416 ・浴室乾燥機能 ・浄水器 ・システムキッチン(ガスコンロ3口) ・ディズポーザ ・グリル ・室内洗濯防水パン ・温水洗浄便座付トイレ ・ウォーム機能付トイレ ・シューズインクローゼット ・ハイサッシ ・バス・トイレ別 ・フローリング |
| 条件 | — |























